

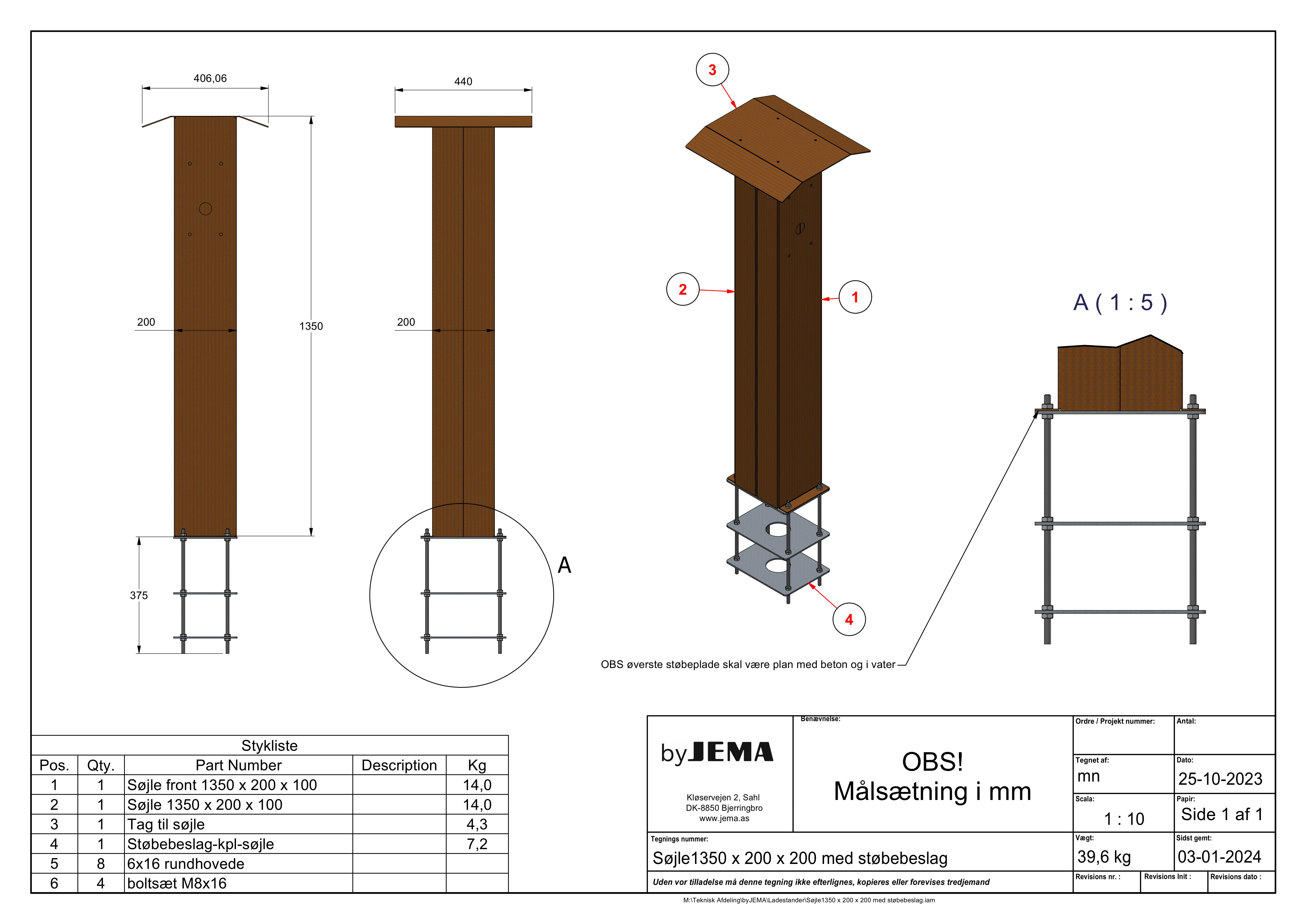
Gjutet fäste för laddningsstation
När du överväger att installera en byJEMA laddstation i ett område med lös grund, t.ex. grus, jord eller gräs, är vårt gjutfäste en idealisk lösning för att säkerställa en stabil och säker installation. Detta gjutfäste är utformat för att fästas i underlaget och skapa en solid grund för laddstationen. När gjutkonsolen är korrekt installerad och gjuten kan laddstationens pelare enkelt monteras ovanpå. Det här systemet är inte bara robust, utan också förberett för enkel installation av nödvändiga kablar till laddstationen.
En av de stora fördelarna med att använda det här gjutna fästet är att det är utformat med tanke på kabeldragning. Man har tänkt på att göra installationen av elkablar till laddstationen så enkel som möjligt, med fördefinierade öppningar och kanaler som säkerställer en snygg och säker dragning av kablarna. Detta minskar installationskostnaderna och minimerar risken för skador på kablarna över tid.
Det gjutna fästet är tillverkat av högkvalitativa material som är motståndskraftiga mot väder, vind och korrosion, vilket säkerställer en lång livslängd för både fästet och den installerade laddstationen. Detta är särskilt viktigt i områden med tuffa väderförhållanden eller hög luftfuktighet där korrosion kan vara ett problem.
Genom att välja ett gjutet fäste från byJEMA till din laddstation får du en lösning som inte bara är praktisk och stabil, utan också estetiskt tilltalande. Konsolens design är minimalistisk och diskret, vilket säkerställer att den inte stör utseendet på utomhusområdet eller landskapsdesignen.
Sammanfattningsvis är det gjutna byJEMA-fästet en utmärkt investering för alla som vill installera en laddstation på en lös yta. Det är en säker och hållbar lösning som garanterar att din laddstation kommer att vara stabil och effektiv under många år framöver. Med det här gjutna fästet kan du njuta av fördelarna med en pålitlig laddstation i ditt hem utan att behöva oroa dig för installationens stabilitet och säkerhet.
Produktbeskrivning
%Gjutningsfäste
Installationsanvisningarna
Välj alternativ


Vad våra kunder säger
⭐⭐⭐⭐⭐ Kundrecension
" Kundservicen är i toppklass - de är otroligt hjälpsamma, alltid tillgängliga för att svara på frågor och det har varit ett stort fokus på kundnöjdhet.
Sammantaget kan vi bara ge byJEMA våra varmaste rekommendationer. Från den utmärkta kundservicen till de hållbara och vackert designade produkterna har vår erfarenhet varit genomgående positiv. Om du letar efter kvalitetsprodukter till din trädgård är byJEMA.dk definitivt värt ett besök.”
Cathrine och Michell
”Vi har nu en hel del corten i trädgården, i olika former och med olika funktioner - allt från byJEMA. Kvaliteten är bra, lätt att montera och priset är rimligt!
byJEMA´s odlingslådor design med den böjda kanten upptill gör att vi tryggt kan låta barnen leka i trädgården runt produkterna utan att oroa oss för vassa kanter”
Lisa Lausten
”Vi skulle vilja ge ⭐⭐⭐⭐⭐➕till byJEMA för deras underbara produkter, danska design och TOP CLASS service.
Sedan dess har mycket mer tillkommit i vår trädgård från byJEMA.... Ja, vi har drabbats av ”rostfeber”🤣
MEN anledningen förutom att vi älskar alla deras supercoola produkter som sträcker sig från utekök, eldstäder, sängkanter och mycket mer, är det helt avgörande i våra investeringar med byJEMA att de tillhandahåller den absolut BÄSTA servicen du kan önska dig som kund. Jag vågar påstå att du inte kommer att få bättre service än vad byJEMA-teamet ger sina kunder.”
Maria och Bo
”Vi kan varmt rekommendera byJEMA.dk till alla som letar efter högkvalitativa stålblomlådor, odlingslådor etc. och en webbshop med fantastisk service.
Vi har handlat på byJEMA.dk flera gånger och varje gång har produkterna överträffat våra förväntningar med sin vackra design och kvalitet. De passar perfekt in i vår trädgård och ger ett stilrent utseende som vi har letat efter.”
@ottoshave
Vårt löfte